Premium New development

Maison de 3 chambres à vendre à Geroskipou

Geroskipou, Paphos, Chypre

€530 000  [£462 720]

Maison de 3 chambres à vendre à Geroskipou

Geroskipou, Paphos, Chypre

€530 000  [£462 720]

Détails du bien immobilier


  • Chambres: 3
  • Salles de bain: 2
  • Surface du terrain: 306 m2
  • Surface habitable: 169,6 m2

Caractéristiques


  • Mountain View
  • Sea View
  • Solar Water Heater

Description complète


PRICES FROM €450,000 +VAT

Located in one of the most desirable areas of Geroskipou, Paphos, a brand new luxurious development is host to this stunning three bedroom villa with a ground floor that is comprised of an open plan living/dining and kitchen area and adjoining guest w/c.

Lines between interior and exterior and all but erased with the spacious living area seamlessly opening out to a large veranda, tranquil private pool, outdoor shower, BBQ area and garden that offers an abundance of space for alfresco dining, entertaining and relaxing.

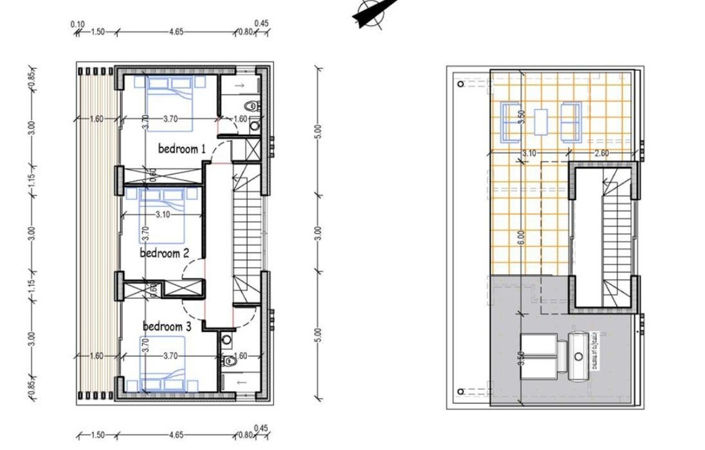
Ascending stairs lead up to the first floor that features three well sized and inviting bedrooms and a family bathroom, with the master bedroom benefitting from an ensuite bathroom. Each bedroom boasts access to a large balcony that makes for the perfect spot for relaxing and enjoying the Cyprus sunsets.

Stairs from the first floor lead up to the roof terrace that offers ample space for entertaining and relaxing whilst enjoying spectacular views.

The entire property is constructed and finished using cutting edge materials and modern design that any discerning buyer would expect. Coupled with this and the convenient location of the development makes this a perfect investment as a long-term rental, holiday let or permanent residence.

Geroskipou is a village to the east of Paphos and is the second largest municipality in the District. This village has a number of characteristics namely its remarkable five-domed Byzantine church of Agia Paraskevi, a folk museum and a large traditional square. The area is also known for the production of Cypriot Delight or Lokum as it’s known locally. There are plenty of shops, kiosks, restaurants and bars in this village as well as many areas of secluded coastline including the popular Ricco’s beach and it is only a short drive from Paphos Town.
Plus

La carte peut ne pas indiquer l'emplacement exact

Cette annonce immobilière (réf: 2190) est fournie par KW Seven Paphos et ne constitue pas nécessairement une description précise d’un bien particulier. Bien que aplaceinthesun.com (APITS Ltd.) demande à tous les annonceurs de fournir des informations correctes, il ne vérifie pas les informations fournies et ne peut être tenu responsable pour quelque erreur que ce soit. Aplaceinthesun.com recommande de solliciter un avis juridique indépendant avant tout achat de bien immobilier à l'étranger.