Premium New development

Studio de 1 chambre à vendre à Paphos

Paphos, Paphos, Chypre

€165 000  [£144 054]

Studio de 1 chambre à vendre à Paphos

Paphos, Paphos, Chypre

€165 000  [£144 054]

Détails du bien immobilier


  • Chambres: 1
  • Salles de bain: 1
  • Surface habitable: 48 m2

Description complète


?? Off-Plan Studio Apartment in Geroskipou, Paphos
? A modern retreat blending comfort, style, and convenience — just minutes from the coast, city center, and nature.

?? Location: Geroskipou, Paphos
?? Status: Off-Plan (Planning Permit Pending)
?? Delivery: 18 months from construction start
?? Price is subject to VAT (5% VAT is applicable criteria applies)
?? Energy Efficiency: Category A+

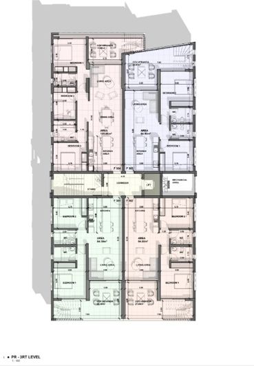
?? Property Details
2nd floor
Type: Studio Apartment
Bathrooms: 1
Internal Covered Area: 40 m²
Covered Veranda: 5.5 m²
Storage Room: 2 m²
Total Covered Area: 47.5 m²
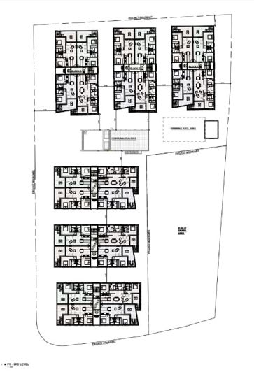
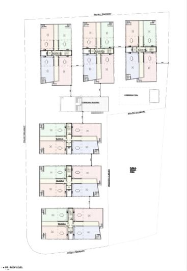
Communal Swimming Pool: 9 × 16 meters
Covered Parking: Yes

?? Project Overview
This contemporary development offers a collection of stylish residences — from studios to spacious 3-bedroom apartments — designed to combine modern living with green surroundings.
Featuring energy-efficient construction (A+), photovoltaic system options, and exceptional lifestyle amenities, this is an ideal choice for those seeking comfort, community, and long-term value.

?? Features & Specifications
Communal Swimming Pool
Covered Parking & Private Storage Room
AC units in all rooms
Double-glazed windows
Electric shutters in bedrooms
High-quality kitchen cabinets & wardrobes
Gated entrance & intercom system
Provision for electric car charging station
Option for photovoltaic panels
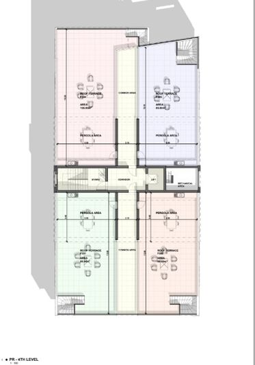
Rooftop garden & landscaped communal areas

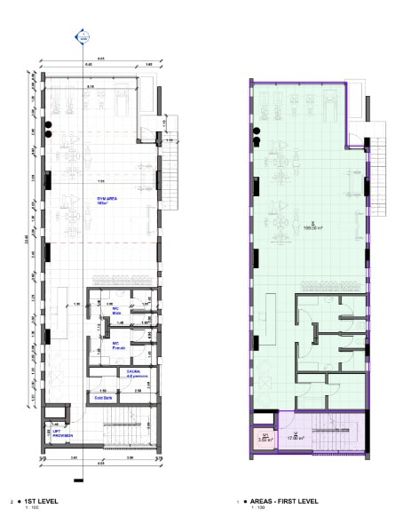
?? Lifestyle Amenities
Gym & Yoga Studio
Spa & Sauna
Café & Lounge Area
Playground & Public Park
Walking Paths & Drop-off Zone
Lobby & Internal Roads
A thoughtfully designed environment that promotes wellness, community, and a sense of belonging.

?? Prime Location
Cabana Beach – 7 min
Paphos Center – 6 min
Lumio School – 7 min
Neon Mall – 4 min
Highway to Limassol – 5 min
Paphos International Airport – 15 min

?? Investment Highlights
Located in one of Paphos’ fastest-growing areas
Strong potential for capital appreciation
High rental demand for both short- and long-term stays
Flexible purchase terms and payment plans available
Premium amenities that enhance lifestyle and long-term value
Plus

La carte peut ne pas indiquer l'emplacement exact

Cette annonce immobilière (réf: LUEP-A206) est fournie par Sunshine Luxury Villas et ne constitue pas nécessairement une description précise d’un bien particulier. Bien que aplaceinthesun.com (APITS Ltd.) demande à tous les annonceurs de fournir des informations correctes, il ne vérifie pas les informations fournies et ne peut être tenu responsable pour quelque erreur que ce soit. Aplaceinthesun.com recommande de solliciter un avis juridique indépendant avant tout achat de bien immobilier à l'étranger.