Premium New development

2 Bed Villa for sale

Lorca, Murcia, Region of Murcia, Spain

£209,534 *  [€240,000]

2 Bed Villa for sale

Lorca, Murcia, Region of Murcia, Spain

£209,534 *  [€240,000]

Property Details


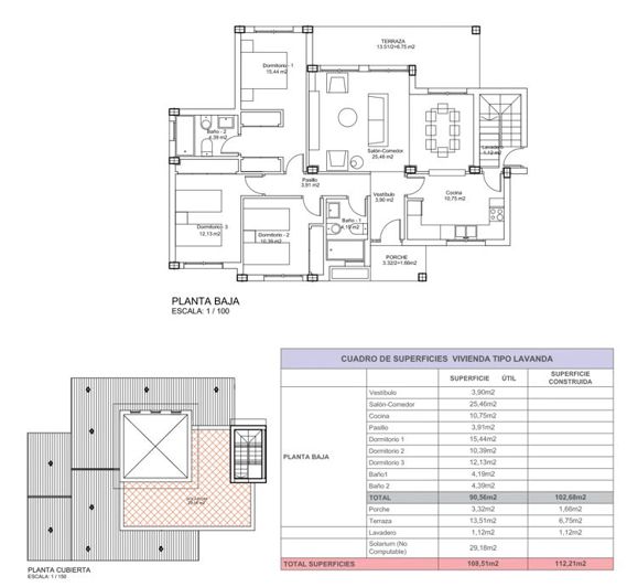
  • Bedrooms: 2
  • Bathrooms: 2
  • Habitable space: 95 m2

Full Description


New construction. Welcome to this exceptional project of a detached villa with land in the southeast of Spain, which combines the tranquillity of the countryside with the proximity to the sea and the city, as well as the main services and convenient road connections to the main airports. . .lorcaRelaxation and tranquillity begin as soon as you arrive home. The open space towards the living room, with large windows, emphasises the indoor-outdoor relationship, combining it in a harmonious atmosphere, infusing the interior with freshness due to the large space dedicated to the garden. It is ideal for creating pleasant outdoor spaces, including the possibility of having your own swimming pool and designing your garden as you have always wished.What sets you apart from the rest? Living in Jardines Almenara is an experience in every way. A pleasant environment, with trees, gardens, cycle path, open views? The tranquillity you desire and that you offer your family.You live in a completely enclosed urbanisation with perimeter fencing, access control and 24 hour surveillance. You have a good neighbour and you live in a pleasant environment that facilitates good coexistence and respect among all. Soon you will have a service area with supermarkets, petrol stations, restaurants....what more could you ask for?Nothing...you already have it all.Find out what your urbanisation is like and what homes you can offer your family. Choose from 2 to 4 bedroom homes, one or two storeys and large fenced plots.Your dream is already in Lorca and when you arrive from the airports of Murcia, Almeria or Alicante, you are in the heart of the Mediterranean coast.With your car, you arrive easily by motorway and you have access to the main towns, centres and capitals of the coast because you are only 45 minutes from Murcia city, 2 and a half hours from Valencia city and 3 hours from Malaga city. Murcia International Airport is 45 minutes away, Almeria Airport is 1 hour and 10 minutes away and Alicante Airport is 1.5 hours away.You are just a step away from everything your family needs in their daily life....You have the beach and the yacht club only 15 minutes from your door, you can play golf and do your shopping in the shopping centre in 5 minutes. Well, it is also important that you and your family are close to the hospital. You have it 15 minutes away...That all this is a dream?No... Contact us and you will see that it is the reality.
Read more

Map may not show exact location

This property listing (ref: 101231/12303) is an advertisement supplied by Medalmar Services Immobiliarios and does not constitute property particulars. While aplaceinthesun.com (APITS Ltd.) requests all advertisers supply correct details, it does not carry out checks on the information supplied and cannot be held responsible for any inaccuracies. Aplaceinthesun.com recommends seeking independent legal advice prior to any overseas property purchase.
*Based on an exchange rate of 0.8731 from Euro to GBP. This rate is updated daily and is an indicative market rate supplied by A Place in the Sun Currency. Actual trading rates vary.