Premium New development

3 Bed Villa for sale

Ayia Napa, Famagusta, Cyprus

£2,881,090 *  [€3,300,000]

3 Bed Villa for sale

Ayia Napa, Famagusta, Cyprus

£2,881,090 *  [€3,300,000]

Property Details


  • Bedrooms: 3
  • Bathrooms: 3
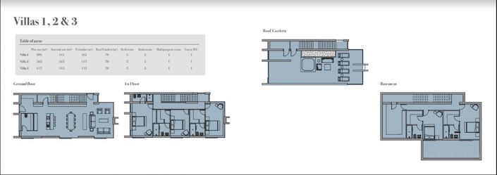
  • Plot size: 1055 m2
  • Habitable space: 345 m2

Full Description


Luxury Seafront 3-Bedroom Villa in Ayia Napa

Elegant 3-bedroom seafront villa with 345 m² of covered space, private roof garden, and guest WC—set on a 1055 m² plot just steps from the beach in Ayia Napa.

Off plan
Estimated delivery: Q1 2027.
Price subject to VAT (5% VAT may apply under qualifying criteria).

Key Features:
??? Bedrooms: 3
?? Bathrooms: 3
?? Guest WC
?? Covered area: 345 m²
?? Roof garden: 70 m²
?? Plot size: 1055 m²
??? Covered parking included

Distances to Key Amenities:
??? Beach – 0 km
??? Shops – 1 km
??? Restaurants – 1 km
?? School – 5 km
?? Airport – 35 km

Positioned directly on the coastline of Ayia Napa’s eastern shore, this off-plan 3-bedroom villa offers a rare combination of spacious design, refined architecture, and uninterrupted sea views. Surrounded by the natural beauty of Cyprus’s east coast, the property is ideal for those seeking a permanent residence or a high-end holiday retreat with direct beach access and proximity to vibrant local amenities.

The villa boasts 345 m² of covered living space, thoughtfully arranged across three bedrooms, three bathrooms, and a guest WC. A private 70 m² roof garden provides a panoramic outdoor escape, while the generous 1055 m² plot ensures privacy, comfort, and room to breathe. Premium finishes, secure gated access, and a clean architectural layout elevate the living experience.

Delivery is expected within 16 months from signing, and the price is subject to VAT.

Located just steps from the beach and within walking distance of shops and restaurants, the villa also offers convenient access to schools (5 km) and the international airport (35 km).
Read more

Map may not show exact location

This property listing (ref: CAT-OSFV1) is an advertisement supplied by Sunshine Luxury Villas and does not constitute property particulars. While aplaceinthesun.com (APITS Ltd.) requests all advertisers supply correct details, it does not carry out checks on the information supplied and cannot be held responsible for any inaccuracies. Aplaceinthesun.com recommends seeking independent legal advice prior to any overseas property purchase.
*Based on an exchange rate of 0.8731 from Euro to GBP. This rate is updated daily and is an indicative market rate supplied by A Place in the Sun Currency. Actual trading rates vary.